บรรยากาศสดชื่นของธรรมชาติ เข้ากันได้เป็นอย่างดีกับ “บ้านทรงไทยประยุกต์” เพราะมักจะเป็นบ้านที่ต้องใช้วัสดุไม้ในการก่อสร้าง จึงให้ความรู้สึกกลมกลืนกับสภาพแวดล้อมที่เป็นสีเขียว และคราวนี้ ในบ้าน ก็มีแบบบ้านทรงไทยประยุกต์สวยๆ มาให้ชาวเว็บได้ลองชมกันครับ
ลักษณะบ้านขนาดสองชั้น โครงสร้างทำจากปูนผสมไม้ ผนังภายนอกที่ชั้นแรกฉาบด้วยปูนทาสีขาวเรียบ บริเวณรอบๆ มีพื้นที่ใช้สอยใต้ชายคา กั้นด้วยรั้วไม้ ส่วนชั้นสองแต่งผนังด้วยไม้ เลือกใช้หลังคาทรงจั่วมุงด้วยกระเบื้องโทนสีเขียว ส่วนทางเข้าบ้านจะมีอยู่สองทาง คือทางบันไดที่ต้องเดินขึ้นไปยังชั้นสอง และประตูที่ชั้นแรก

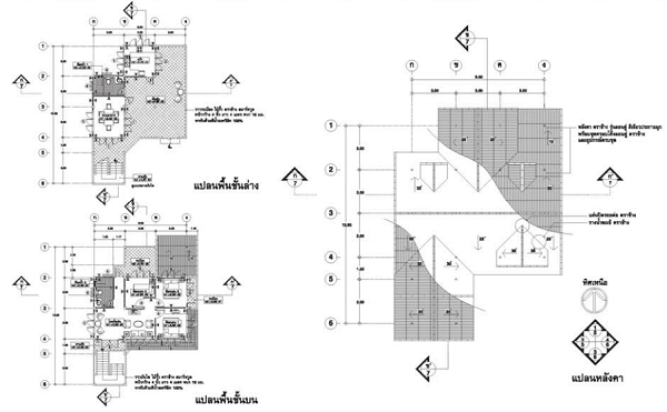
มาชมแบบแปลนกันบ้างครับ พื้นที่ชั้นแรกจะเป็นห้องครัว ห้องรับประทานอาหาร พร้อมห้องน้ำอีกหนึ่งห้อง ส่วนชั้นสองจะเป็นพื้นที่ส่วนตัวสำหรับครอบครัวโดยจะเป็นโซนห้องนอน กระจายตัวอยู่ทางบริเวณด้านขวา ส่วนด้านหลังของชั้นสองยังมีพื้นที่พักผ่อนรับลมเย็นสบายๆ อีกด้วย

บ้านหลังนี้มีทั้งหมด 3 ห้องนอน 2 ห้องน้ำ กับพื้นที่ใช้สอย 185 ตารางเมตร คิดเป็นงบก่อสร้างคร่าวๆ จะตกอยู่ที่ 2.1 – 2.3 ล้านบาทครับ (ราคานี้ยังไม่รวมงบตกแต่ง)
ที่มา : Scgbuildingmaterials
| หน้าที่เข้าชม | 747,685 ครั้ง | 
| ผู้ชมทั้งหมด | 643,472 ครั้ง | 
| เปิดร้าน | 29 มี.ค. 2558 | 
| ร้านค้าอัพเดท | 4 พ.ย. 2568 |